SKOLEUDVIDELSE: THORSHAVE FLYTTES IGEN
BRYGGEBLADET 17.11.2004 - Skolens udvidelse og den omdiskuterede lokalplan for hele området øst for Artillerivej, får også konsekvenser for fritidshjemmet Thorshave. Fritidshjemmet flyttes allerede i begyndelsen af 2005 fra de eksisterende pavillioner bag ved skolegården til det område på Artillerivej, der tidligere husede Heklas skurvogn, samt en mindre legeplads og et grønt areal.

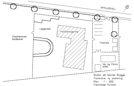
Oversigt over lokalplanområdet med skitser til skolens udbygning.
Der er bevilget 6,2 millioner kroner til flytningen, som blandt andet betyder at fritidshjemmets legeplads bliver mindre end den nuværende.
Til gengæld er den beliggende, så boldbanernes areal både visuelt og i praksis i vidt omfang kan indgå i den daglige anvendelse, påpeger forvaltningen.
Det forventes, at der er behov for at genhuse børnene og personalet i cirka fire måneder, mens pavillonerne flyttes og istandsættes.
Genhusningen foregår i spejderhytten på Artillerivej, der også blev anvendt sidste gang Thorshave flyttede. Dette undrer spejderne sig lidt over, da de tidligere har fået at vide af kommunen, at spejderhytten skal lukke ved årsskiftet.

Kommunens skitse til det nye Thorshave.
Oprindelig lå Thorshave på Ny Tøjhusgrunden, men blev flyttet i umiddelbar nærhed af skolen, på grund af udviklingen på området.
Nu kræver udviklingen i bydelen en større skole og institutionen må atter en gang flyttes. Thorshave fortsætter dog som et selvstændigt fritidshjem. Projektet forventes afsluttet i juni 2005. ljg
FORVIRRINGEN HERSKER FORTSAT
Som det fremgår af ovenstående og tidligere artikler i Bryggebladet hersker der en del forvirring om adskillige dele af den lokalplan for Artillerivej Øst, der udstikker rammerne for en skoleudvidelse. Det er så vidt vides, endnu ikke helt lykkedes at finde en løsning, der tilgodeser alle parter. Lokalplanen var på dagsordenen på det magtfulde Økonomiudvalgs møde, der blev afholdt i går tirsdag efter Bryggebladets deadline. Herefter er ideen, at den reviderede lokalplan skal endelig vedtages i Borgerrepræsentationen den 25. november. Bryggebladet følger op på sagen i kommende udgaver. tkj/agn
Links til tidligere artikler om skoleudvidelsen og lokalplanen for "Artillerivej Øst":
03.11.04 - Beslutning om H/F Faste Batteri udskudt til 2006
06.10.04 - Flytning af haveforening giver politikerne hovedbrud
22.09.04 - Haveforening aner lys for enden af tunnelen
25.08.04 - Lang vej til ny legeplads
11.08.04 - Mystik om Anna Poulsens legeplads
26.05.04 - Ringe fremmøde på borgermøde om lokalplan for Artillerivej
26.05.04 - Haveforening: Ryk haver mod syd
05.05.04 - Borgermøde om skoleudbygning den 24. maj
På bryggebladet.dk den 16. november 2004.
Redigeret udgave af artikel der bringes i Bryggebladet 19-2004 (udkommer 17. november).